Ga naar inhoud

Te koop: woonhuis Valkenswaardseweg 5 5595 CA Leende

Van den Buijs Garantiemakelaars Nuenen
Contact me

Verkocht

€ 369.000,- k.k.

Karakteristiek vrijstaand vooroorlogs woonhuis met een diepe tuin, een woonkeuken en 3 slaapkamers. Deze woning is zeer gunstig gelegen aan de rand van de dorpskern van Leende, op enkele autominuten van de A2 richting Maastricht en Eindhoven.
Ook heeft het een zeer gunstige ligging t.o.v. ASML, de Hightech Campus en Eindhoven Airport.

– Bouwjaar : circa 1937
– Woonoppervlakte : circa 176 m²
– Inhoud : circa 659 m³
– Perceeloppervlakte : circa 360 m²
– Aanvaarding : in overleg

Bijzonderheden:
– Het object biedt veel mogelijkheden, maar u dient rekening te houden met bijkomende kosten om de woning te renoveren en te moderniseren. In de koopovereenkomst wordt de “as is-where is”-clausule opgenomen.
Zie impressietekening. Meer tekeningen zijn op aanvraag verkrijgbaar.

Indeling:

Begane grond:
– entree/ruime hal met een bordestrap naar de 1e verdieping;
– lichte L-vormige woonkamer (oppervlakte: circa 35 m²) met een tegelvloer en een balkenplafond. Ook treft u in de woonkamer een pellet kachel aan en de meterkast (vernieuwde groepenkast met 7 groepen, een krachtstroomgroep en 2 aardlekschakelaars).
– riante woonkeuken (oppervlakte: maar liefst circa 21 m²) met tegelvloer en een nette keukeninrichting, voorzien van een oven, inductiekookplaat, afzuigkap en een koelkast.
– hal met toegang tot de toiletruimte, badkamer en bijkeuken;
– geheel betegelde toiletruimte met een duoblok;
– geheel betegelde badkamer met een douche, wastafel en aansluiting voor een wasmachine;
– ruime bijkeuken met de CV-opstelling (Vaillant HR-combiketel);
– tegen de achterzijde is een kantoorruimte gebouwd met de volgende indeling: hal, toilet en 2 kantoren, waarvan ƩƩn met een pantry; het betreft een houten constructie, gedekt met damwandprofielplaat; uiteraard is deze ruimte ook bruikbaar voor andere doeleinden; verder is het vrij gemakkelijk te slopen t.b.v. meer tuin.

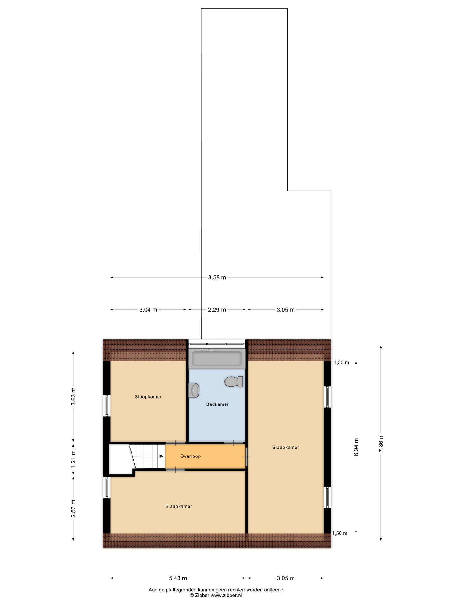
1e Verdieping:
– overloop met luik naar de zolder;
– 3 riante slaapkamers (oppervlakten: respectievelijk circa 11, 14 en 21 m²);
– ruime en geheel betegelde badkamer, voorzien van een ligbad, wastafel en een duoblok.

2e Verdieping:
– ruime bergzolder.

Buitenterrein:
– brede oprit, geschikt voor meerdere auto’s;
– zonnig bestraat terras met een achterom.

Uitnodiging:

De eigenaar van deze woning heeft ons opdracht gegeven te bemiddelen bij de verkoop, hetgeen voor u uiteraard geen enkele financiƫle consequentie inhoudt. Geheel vrijblijvend informeren wij u uitvoerig over de woning, maar ook over de financieringsmogelijkheden en over de mogelijkheden van de verkoop van uw eigen woning. Uiteraard is het aan te bevelen deskundige bijstand van een NVM-makelaar te vragen. Wij helpen u graag bij uw keuze voor een eigen makelaar die uw belangen als koper optimaal zal behartigen.

Tot zekerheid voor de nakoming van de verplichtingen dient de koper, binnen 6 weken na het tot stand komen van de overeenkomst, een schriftelijke bankgarantie te doen stellen c.q. een waarborgsom te storten ter hoogte van 10% van de koopsom.

De brochure is samengesteld om u een indruk te geven van het object. De informatie die opgenomen is in deze brochure is afkomstig van de verkoper en/of derden. Hoewel wij bij het samenstellen van de brochure zorgvuldig te werk gaan, kunnen geen rechten worden ontleend aan onjuistheden etc. Deze informatie moet in combinatie met een bezichtiging van de woning worden beschouwd als een uitnodiging tot het doen van een bod of om in onderhandeling te treden.

De meting is gebaseerd op NEN2580. De Meetinstructie is bedoeld om een meer eenduidige manier van meten toe te passen voor het geven van een indicatie van de gebruiksoppervlakte. De Meetinstructie sluit verschillen in meetuitkomsten niet volledig uit, door bijvoorbeeld interpretatieverschillen, afrondingen of beperkingen bij het uitvoeren van de meting.

Een mondelinge overeenstemming tussen de particuliere verkoper en de particuliere koper is niet rechtsgeldig. Met andere woorden: er is geen koop. Er is pas sprake van een rechtsgeldige koop als de particuliere verkoper en de particuliere koper de koopovereenkomst hebben ondertekend. Dit vloeit voort uit artikel 7:2 Burgerlijk Wetboek. Een bevestiging van de mondelinge overeenstemming per e-mail of een toegestuurd concept van de koopovereenkomst wordt overigens niet gezien als een ā€˜ondertekende koopovereenkomst’.

Bij grote belangstelling kan worden overgegaan tot een biedingsprocedure.

  • 176 m2
  • 360 m2
  • 3

Features Valkenswaardseweg 5

Overdracht

Vraagprijs€ 369.000,- k.k.
AanvaardingIn overleg

Oppervlaktes en inhoud

Perceel oppervlakte360 m2
Woonoppervlakte176 m2
Inhoud659 m3

Bouw

SoortEengezinswoning
BouwvormBestaande bouw
Bouwjaar1937
Dak typeMansardedak
IsolatievormenGedeeltelijk dubbelglas
EnergielabelF

Indeling

Aantal verdiepingen3
Aantal kamers6
Aantal slaapkamers3
Aantal badkamers2

Foto's en video's door vrienden toegevoegd

Zelf toevoegen

Ken jij dit huis of deze buurt? Voeg dan in een paar stappen jouw eigen ervaring toe.

Monthly costs

Location Valkenswaardseweg 5

Voorzieningen

Centraal gelegen informatie over de buurt

Aantal inwoners

In de gemeente

15.714

Leeftijd

in percentages van totaal

Huishoudsamenstelling

in percentages van totaal

29%

20% NL

34%

20% NL

37%

20% NL

Comparable listings